Obsah stránky
Projekt: Smíšené stezky pro chodce a cyklisty v Mercandinových sadech - II. etapa
Submenu
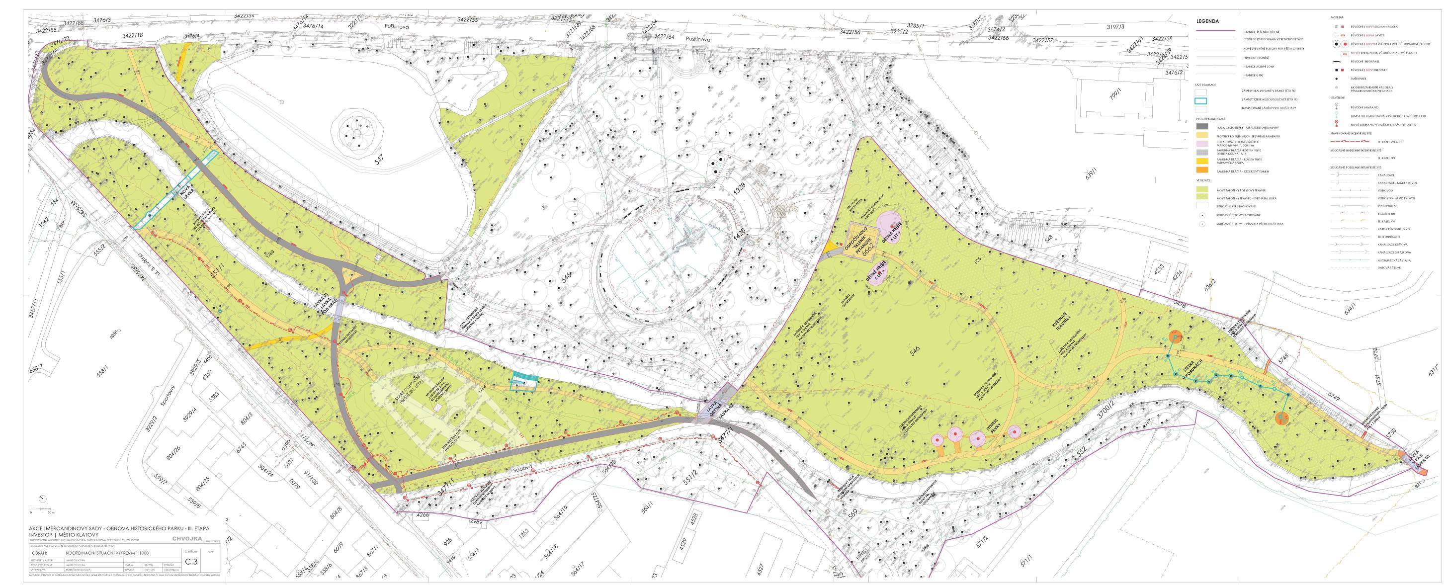
Projekt s názvem "Smíšené stezky pro chodce a cyklisty v Mercandinových sadech - II. etapa" je součástí zastřešující stavební akce s názvem "Mercandinovy sady - obnova historického parku - III. etapa". Předmětem žádosti o dotaci (resp. způsobilých výdajů projektu) v rámci 72. výzvy IROP je rekonstrukce, modernizace a výstavba společných stezek pro chodce a cyklisty (v délce 1.068 m), vč. 3 stávajících nevyhovujících lávek přes Drnový potok. Stezky slouží jednak k cyklodopravě (k dopravě do zaměstnání, škol, obchodů a za službami apod.), jednak zpřístupňují prostor parku k rekreačním účelům a sportovnímu vyžití široké veřejnosti. Způsobilými výdaji jsou dále náklady na veřejné osvětlení těchto stezek (nových 14 ks stožárů s LED svítidly) a mobiliář v podobě cyklostojanů.
Neuznatelnými výdaji projektu, které bude hradit výhradně město, jsou výdaje na obnovy trávníků a doplnění atrakcí pro nejširší veřejnost – hřiště pro děti 6-12 let, odpočinková plocha s pétanque, stezka s fitness prvky a prvky pro seniory.
Smyslem projektu je stejně jako v předchozí etapě obnovy cestní sítě v parku zvýšení komfortu a zejména celkové bezpečnosti provozu pro pěší a cyklisty. Jedním z cílů je pochopitelně i zvýšit kvalitu a prodloužit dobu rekreace v dotčeném prostoru.
Realizace projektu celkově zvýší bezpečnost pohybu, atraktivitu hlavního městského parku a podmínky pro mobilitu v rámci bezmotorových forem dopravy pro obyvatele, návštěvníky města i širšího okolí. Současně dojde i k posílení rozvoje rekreačních funkcí a cestovního ruchu vůbec. Výstupy a dopady projektu současně přinesou posílení synergických efektů mezi rozvojem šetrných nemotorových forem dopravy a kvalitou veřejného prostoru, jakožto i stavem životního prostředí a ochranou přírody. Nelze opomenout ani pozitivní vlivy jízdy na kole či chůze na zdravotní stav populace.
Stavba nových cyklostezek a stezek pro pěší a cyklisty je součástí dlouhodobého plánu města Klatovy přijatého v novém strategickém plánu. Konečným cílem je zvýšení délky cyklostezek a stezek pro pěší a cyklisty na území města a v jeho bezprostředním okolí, jejich vzájemné provázání a zvýšení podílu cyklistů (cyklistické dopravy) na celkovém objemu přepravní práce, a to jak z hlediska čistě dopravního (dojížďka do zaměstnání, škol, za službami apod.), tak v dopravě (cestách) v rámci cestovního ruchu a rekreace.
Termín realizace: od 03/2018 do 12/2018
Celkové předpokládané náklady: 26.000.000 Kč vč. DPH
Celkové předpokládané uznatelné výdaje (jen na smíšené stezky a lávky): 18.527.000 Kč vč. DPH
Předpoklad dotace IROP 90 %: 16.675.000 Kč vč. DPH
Neuznatelnými výdaji projektu, které bude hradit výhradně město, jsou výdaje na obnovy trávníků a doplnění atrakcí pro nejširší veřejnost – hřiště pro děti 6-12 let, odpočinková plocha s pétanque, stezka s fitness prvky a prvky pro seniory.
Smyslem projektu je stejně jako v předchozí etapě obnovy cestní sítě v parku zvýšení komfortu a zejména celkové bezpečnosti provozu pro pěší a cyklisty. Jedním z cílů je pochopitelně i zvýšit kvalitu a prodloužit dobu rekreace v dotčeném prostoru.
Realizace projektu celkově zvýší bezpečnost pohybu, atraktivitu hlavního městského parku a podmínky pro mobilitu v rámci bezmotorových forem dopravy pro obyvatele, návštěvníky města i širšího okolí. Současně dojde i k posílení rozvoje rekreačních funkcí a cestovního ruchu vůbec. Výstupy a dopady projektu současně přinesou posílení synergických efektů mezi rozvojem šetrných nemotorových forem dopravy a kvalitou veřejného prostoru, jakožto i stavem životního prostředí a ochranou přírody. Nelze opomenout ani pozitivní vlivy jízdy na kole či chůze na zdravotní stav populace.
Stavba nových cyklostezek a stezek pro pěší a cyklisty je součástí dlouhodobého plánu města Klatovy přijatého v novém strategickém plánu. Konečným cílem je zvýšení délky cyklostezek a stezek pro pěší a cyklisty na území města a v jeho bezprostředním okolí, jejich vzájemné provázání a zvýšení podílu cyklistů (cyklistické dopravy) na celkovém objemu přepravní práce, a to jak z hlediska čistě dopravního (dojížďka do zaměstnání, škol, za službami apod.), tak v dopravě (cestách) v rámci cestovního ruchu a rekreace.
Termín realizace: od 03/2018 do 12/2018
Celkové předpokládané náklady: 26.000.000 Kč vč. DPH
Celkové předpokládané uznatelné výdaje (jen na smíšené stezky a lávky): 18.527.000 Kč vč. DPH
Předpoklad dotace IROP 90 %: 16.675.000 Kč vč. DPH
![]()


